
2018年に家を建てたウシ(@usiwaka125)です。
「あってよかった4畳の和室の使い方」
結論から言うと狭い和室を設けてよかったと思ってます。
特に子育て世代にとって育児が楽になりますよ。
- 4畳の和室の使い方
- 和室があってよかったこと
- 和室を設けるなら気を付けること
【もくじ】
実例:4畳の和室の使い方とメリット

- 基本は「子育て」
- たまに「来客用」
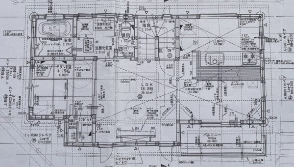
4.15畳のモダン和室を間取りに取り入れたウシ家。
18畳のLDKと一体化しており、風呂とトイレもすぐそこにあります。
なにより衣食住がすべてワンフロアで完結する。
控えめに言っても子育て&家事動線が完璧です。
子育てに使う和室
主に母子の寝室として使っている和室。
「畳」と「間取り」が子育てにフィットしすぎです。
風呂上りの最短動線
ワンオペ育児で大変だったのがお風呂でした。
賃貸はリビングから風呂までの間に廊下があって寒いのなんの。
浴室も暖房機能なんてないから冬は身震いするほど。
子どもも寒いだろうけど私も寒い。
風呂上りは子どもをバスタオルにグルグル巻きで運搬。
とにかく寒さとの闘いでした。
一方、新居はリビングとつながってて光熱費の無駄がなく冷暖房完備。
なにより浴室暖房のおかげで私も子供も寒くない。
これだけで心の余裕が段違い。
億劫なお風呂が楽しい時間になりました。
うちは子が2歳のときに新居に越しましたが、
もし0歳でマイホームを建ててたらもっと余裕をもって子育てができたろうなと思います。
和室に着替えセットしてそのまま転がせながら自分も着替えれますからね。
4.15畳もあれば着替え作業が捗ります。
このように小さなストレスでも毎日となれば大きなストレスになります。
特に乳児なんて目が離せなくてイライラしがち。
だからこそ親が楽できる育児環境(間取りや設備)を整えたほうが良いってのが私の考えです。
ゴロゴロ転がっても安心
乳児から幼児まではベビーベッドからの落下が心配。
成長するにつれダイナミックな寝相に頭を悩ませます。
乳児のころは賃貸住まいで親のベッド横に設置したベビーベッドに寝かせてました。
つかまり立ちするくらいから落下がすごく心配で壁をうまく利用して落下しないようにしてみたものの、
気になって夜に何度か目が覚めたり熟睡できなかったりしました。
ベビーベッドの中でつかまり立ちしたものの倒れて自力で起き上がれずギャン泣きしてたこともありました。
子どもなんて一瞬で何しでかすかわからない生き物です。
気苦労が絶えません。
そんな息子も6歳になった現在は寝相が激しいです。
和室に布団を2枚敷いて母子で寝ていますが暑がりなうちの子は寝てしばらくするとゴロゴロし始め、
布団の隙間にある畳の上で落ち着いていることがしばしば。
ひんやりして気持ちいいんでしょうね。
起こすのも悪いし彼なりに快適そうなのでそのまま放置してます。
(布団かけたら余計ゴロゴロする)
フローリングだと体が冷えすぎるのでこうはいきません。
まとめると畳最高!ってことです。
ベビーベッドを使わないから落下の心配なし。
畳で体温調節。
横で親も安心してゆっくり寝れる。
私にとってメリット尽くしです。
まぁ、旦那のように子どもが横にいるだけで目が冷めちゃうタイプもいますけどね。
ちなみに落下が心配で小上がりにするのはやめました。
年取って小さな段差にもつまづくことが増えたことを考えると小上がりにしなくてよかったかもしれません。
子どもの遊びスペースになる
引越した当初は和室で遊ばせてました。
フラットで安全だし、4畳だから片付けもすぐです。
なによりキッチンから子供の様子を見ることができるのは良かったです。
4歳あたりからおもちゃが急激に増えたのでリビングに玩具は引越しました。
以降、和室は完全に寝室として機能しています。
おもちゃが捨てられなくて困ってる人向け
幼児のときから息子と断捨離をしてきた経験談まとめ。
子ども自身が納得しておもちゃを捨てるようになるテクニックを紹介してます。
来客用として使う和室
親族がたまに来るんですが来客用寝室として使っています。
実家が遠いためうちに来るときは基本泊まりになるわけで。
来客用のベッドを用意する広さがうちにはないので和室を使います。
9割は実母。
子どももおばあちゃんと一緒に寝たいって言うので実母と子は和室。
私は主寝室のベッドで寝ています。
ゆっくり寝れるまたとない機会です。
宿泊者ほぼなしって想定で家を建ててますけど、
2名までは寝泊まりできるって感じです。
注文住宅に和室を付けるなら気を付けるべきポイント

- 用途と家具の配置をあらかじめ考えて広さを決める
- メンテナンスを考える
用途と家具の配置から広さを決める
間取り決めの全てに通じる話ですが"使い道"は決めたほうがいいです。
明確な使い道が分かってれば広さも自ずと決まります。
うちは10年ほど和室で子育て。
子どもが個室で寝るようになれば猫の部屋&私の部屋にしようと思ってました。
だから広さは布団が2枚敷けて家具が少し置ける広さで充分。
結果4.15畳になったわけです。
予定通り布団2枚と大きめの加湿空気清浄機を置けてるので満足してます。
また、一体化することで空間が広く感じますよ。
「あったらいいな~」「便利だろうな~」ではなく、
具体的な使い方や家具配置まで考えておくと間取りの失敗率は下がります。
間取り失敗したくない人向け
理想の家づくりで必要なのは具体的なイメージです。
間取り設計の段階で完成形を脳内で作ることができれば失敗しにくくなる。
そんな家づくり体験談まとめ記事↓
メンテナンスを考える
うちの和室には障子や床の間がありません。
理由はメンテナンスが大変だから。
障子は張り替えるのが面倒くさい。
床の間があっても飾る物がない。
このように余計なメンテナンス費を避けて不要なものを省いた結果、フラットなモダン和室にしました。
メンテナンスは畳のみ。
おしゃれだけでなく維持費込みで考えてみたはいかがでしょうか?
家づくりの勉強になる「持ち家計画」

- 大手ハウスメーカー100社以上を取り扱い
- こだわりや予算にあったハウスメーカーを紹介してくれる
- 建築事例、家づくりコラムが見れる
一括で複数のハウスメーカーや工務店に資料請求や来場申込ができる【持ち家計画】(外部サイト)
100社以上のハウスメーカーや工務店からあなたの予算やこだわりに適した企業を紹介してくれます。
住友林業株式会社、セキスイハイム、一条工務店、スウェーデンハウス、積水ハウス、パナソニックホームズ、住宅情報館など。
大手ハウスメーカーも取り扱われているので安心です。
取扱い企業は【持ち家計画】(外部サイト)最下部「運営会社」⇒最下部「掲載ハウスメーカー・工務店」から確認できます。
一括資料のみならず、自宅付近の展示場や店舗への来場申込も同時にできて無駄がありません。
パッと家づくりの第一歩を踏み出せるのではないでしょうか。
さらに建築事例を見ることができるのも嬉しいです。
ハウスメーカーが実際に立てたお宅の写真や間取り、おすすめポイントなどが紹介されています。
また、家づくりのコラムも役立ちますよ。
誰しもが悩む予算や値引き方法、間取りや建材、ハウスメーカーの比較などボリューミーな内容です。
注文住宅の知識として読んでおく価値はあると思います。
どちらも無料、登録一切なしで閲覧できます。
➡【家づくりで損しないために【持ち家計画】】(外部サイトへ)
最下部「運営会社」⇒最下部「はじめての家づくりガイド」でご覧いただけます。
\ たった3分で一括資料請求、来場申込 無料で利用 /
➡【
複数のハウスメーカー・工務店に資料請求・来場申込が出来るサイト【持ち家計画】】(外部サイトへ)![]()
4畳の和室の使い方と感想
「まとめ」

- 育児を楽にしたいから4.15畳の和室を設けたら超使いやすくて大満足
- ワンオペ育児で最も苦労したお風呂が格段に楽になった
- 賃貸より設備が断然良くなった
- 和室だからゴロゴロ転がっても安心できる
- ベビーベッドを使わないから落下の心配もない
- ちょっとした遊びスペースにも和室は使える
- 「母子寝室」兼「来客の宿泊部屋」にすることで間取りの節約が可能
- 和室を設けるかどうかは使い道次第、広さも用途次第
- リビングと和室を一体化することで空間が広く感じる
- 障子や床の間はメンテナンス費用と手間を考えたほうが良い

家事や風呂までの動線なども考えて建てることをおすすめします。
最後まで読んでいただきありがとうございます。
それではまた!




